Proiect Casa Mansarda -140,71 m2 m2 Suprafața Utilă
Descriere
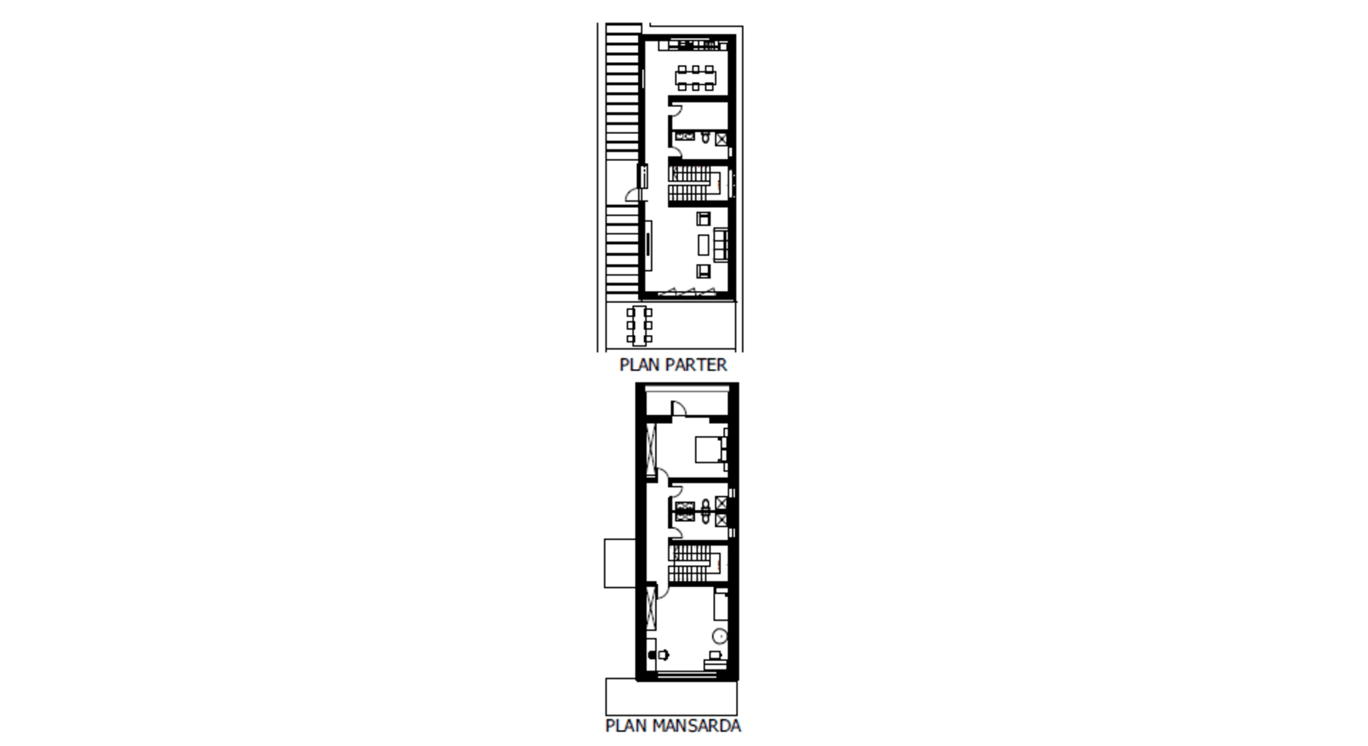
Casa cuprinde 2 camere, living si 3 bai. Bucataria impreuna cu dining-ul fac parte din zona de zi. Este ideala unei familii cu un copil.
- Suprafața Construită : 111,59 m2
- Suprafața Construită Desfășurată : 205,56 m2
- Suprafața Utilă : 140,71 m2
Contact
Contactează-ne pentru următorul tău proiect
Accesează pagina noastră de contact sau utilizează informațiile de mai jos pentru a ne trimite un mesaj. Suntem gata să îți oferim suportul necesar pentru succesul proiectului tău.