Proiect Casa Etaj -169,81 m2 Suprafața Utilă

Descriere

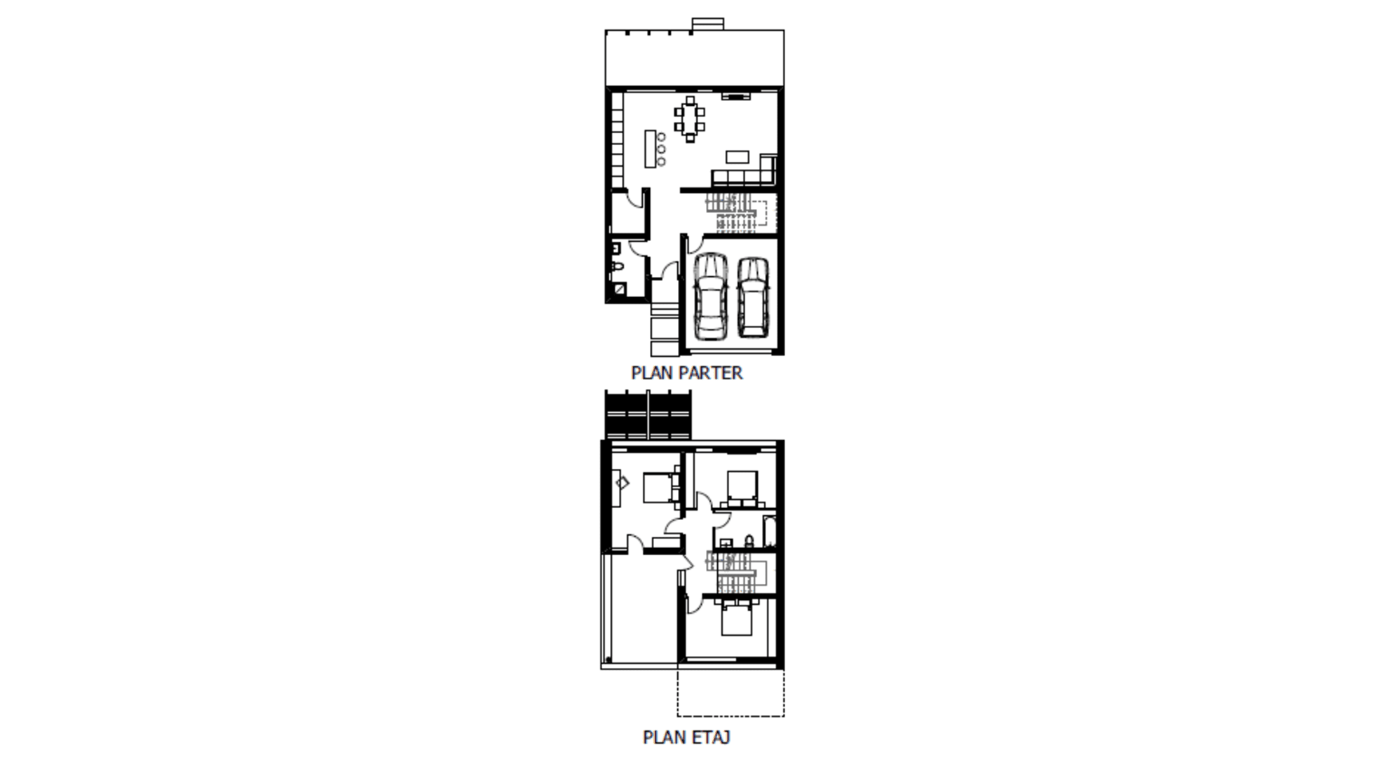
Casa cuprinde 3 camere, living si 2 bai. Bucataria impreuna cu dining-ul fac parte din zona de zi alaturi de living. La etaj este prevazuta o terasa acoperita. De asenenea casa cuprinde si un garaj spre strada. Este ideala unei familii cu unu sau doi copii.

Contact

Contactează-ne pentru următorul tău proiect

Accesează pagina noastră de contact sau utilizează informațiile de mai jos pentru a ne trimite un mesaj. Suntem gata să îți oferim suportul necesar pentru succesul proiectului tău.

about
Telefon

0748 541 766

Whatsapp

0748 541 766

Facebook

JARHITECTURA MAT

Email

jarhitectura@gmail.com