Proiect Casa Etaj - 114,51 m2 Suprafața Utilă

Descriere

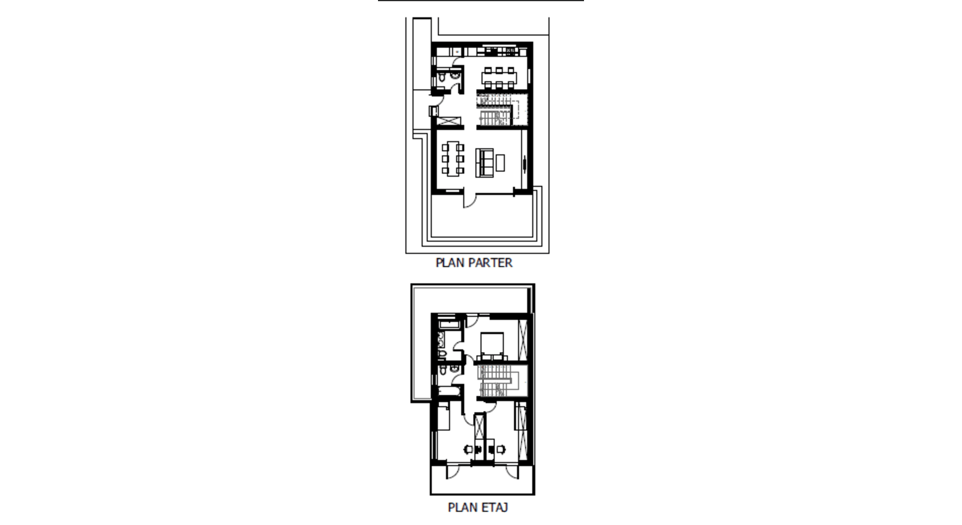
Casa cuprinde 3 camere, living si 3 bai. Livingul impreuna cu dining-ul alcatuiesc zona de zi cu deschidere spre terasa. Este ideala unei familii cu doi copii.

Contact

Contactează-ne pentru următorul tău proiect

Accesează pagina noastră de contact sau utilizează informațiile de mai jos pentru a ne trimite un mesaj. Suntem gata să îți oferim suportul necesar pentru succesul proiectului tău.

about
Telefon

0748 541 766

Whatsapp

0748 541 766

Facebook

JARHITECTURA MAT

Email

jarhitectura@gmail.com